用户登陆
免费注册
找回密码
站内短信
论坛搜索
道具中心
统计排行
勋章中心
工控下载
购买产品
用户名
密码
输入验证码:
勇敢
综合讨论
资料互助
程序样例
三菱工控
西门子区
欧姆龙区
触摸屏区
工控人家园
综合讨论
星三启动电路那个更好
上一主题
下一主题
«
1
2
»
Pages: 1/2 Go
wangfuwang
下岗农民
级别: 论坛先锋
发送短信
加为好友
精华主题:
0
发帖数量:
534 个
工控威望:
1035 点
下载积分:
2415 分
在线时间: 241(小时)
注册时间:
2007-09-06
最后登录:
2026-04-07
查看wangfuwang的
主题
/
回贴
楼主
发表于: 49天前
只看楼主
|
小
中
大
图片:
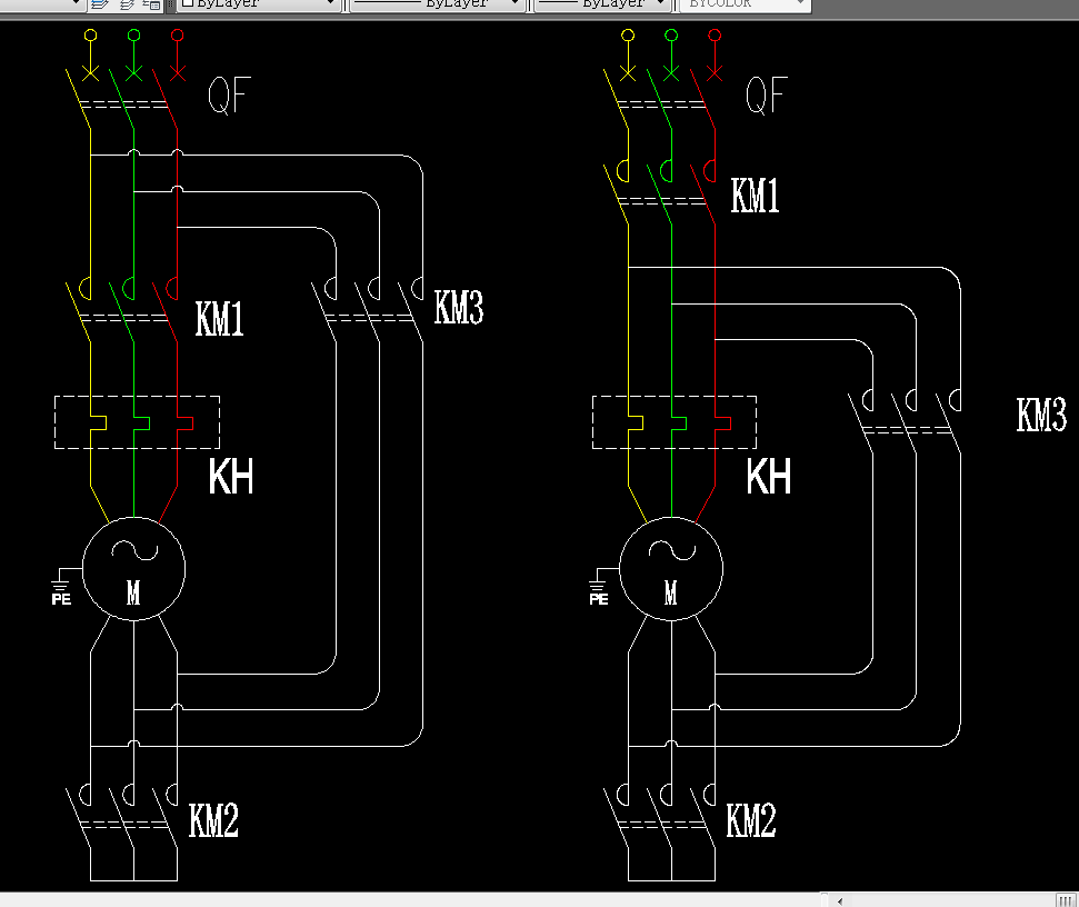
这二个星三启动电路那个合理,是左边图好还是右边的好,实际电柜上大部份用的左边图,但个人觉得还是右边安全更合理
分享
ff123456
级别: 探索解密
发送短信
加为好友
精华主题:
0
发帖数量:
101 个
工控威望:
165 点
下载积分:
8929 分
在线时间: 82(小时)
注册时间:
2023-02-19
最后登录:
2026-05-15
查看ff123456的
主题
/
回贴
1楼
发表于: 49天前
只看该作者
|
小
中
大
右边安全更合理
分享
wangfuwang
下岗农民
级别: 论坛先锋
发送短信
加为好友
精华主题:
0
发帖数量:
534 个
工控威望:
1035 点
下载积分:
2415 分
在线时间: 241(小时)
注册时间:
2007-09-06
最后登录:
2026-04-07
查看wangfuwang的
主题
/
回贴
2楼
发表于: 49天前
只看该作者
|
小
中
大
个人也觉得右边更安全些,但大部份人都是用左边电路,器件排例接线美观
分享
龙云浪子
级别: 工控侠客
发送短信
加为好友
精华主题:
0
发帖数量:
457 个
工控威望:
3349 点
下载积分:
7999 分
在线时间: 491(小时)
注册时间:
2013-01-18
最后登录:
2026-05-15
查看龙云浪子的
主题
/
回贴
3楼
发表于: 49天前
只看该作者
|
小
中
大
引用
引用第2楼wangfuwang于2026-03-28 17:43发表的 :
个人也觉得右边更安全些,但大部份人都是用左边电路,器件排例接线美观
除此以外,左图三个接触器可以选择一模一样的1/2电机额定电流的规格型号,备件数量、材料单位成本和总成本都少很多。右图是一大(KM1)二小。
[ 此帖被龙云浪子在2026-03-29 10:53重新编辑 ]
分享
guochunyi
直读解西门屏HMI口令 。。。
级别: 论坛版主
发送短信
加为好友
精华主题:
5 篇
发帖数量:
8191 个
工控威望:
10564 点
下载积分:
21536 分
在线时间: 3223(小时)
注册时间:
2007-03-01
最后登录:
2026-05-15
查看guochunyi的
主题
/
回贴
4楼
发表于: 48天前
只看该作者
|
小
中
大
左边的比右边的价格成本低
右边的比左边的安全系数高.
可直读解西门屏HMI各级帐户口令,帐户登录权限提升,锁定帐户激活。。。
分享
hstec2002
级别: 工控侠客
发送短信
加为好友
精华主题:
0
发帖数量:
698 个
工控威望:
2101 点
下载积分:
10363 分
在线时间: 912(小时)
注册时间:
2021-05-05
最后登录:
2026-05-15
查看hstec2002的
主题
/
回贴
5楼
发表于: 48天前
只看该作者
|
小
中
大
如果明白线电流和相电流就会知道没有所谓的安全点和安全系数高之类的问题。
QQ: 2845452345
分享
wjq847203529
级别: 正式会员
发送短信
加为好友
精华主题:
0
发帖数量:
27 个
工控威望:
74 点
下载积分:
3722 分
在线时间: 24(小时)
注册时间:
2026-02-08
最后登录:
2026-05-15
查看wjq847203529的
主题
/
回贴
6楼
发表于: 48天前
只看该作者
|
小
中
大
来学习的
分享
honggun
级别: 网络英雄
发送短信
加为好友
精华主题:
0
发帖数量:
1741 个
工控威望:
7224 点
下载积分:
50644 分
在线时间: 980(小时)
注册时间:
2009-11-16
最后登录:
2026-05-15
查看honggun的
主题
/
回贴
7楼
发表于: 48天前
只看该作者
|
小
中
大
选左边的
分享
hqokabc
级别: 略有小成
发送短信
加为好友
精华主题:
0
发帖数量:
317 个
工控威望:
337 点
下载积分:
1145 分
在线时间: 22(小时)
注册时间:
2025-01-02
最后登录:
2026-05-15
查看hqokabc的
主题
/
回贴
8楼
发表于: 44天前
只看该作者
|
小
中
大
用得最多的是左边
分享
ajunn
级别: 家园常客
发送短信
加为好友
精华主题:
0
发帖数量:
524 个
工控威望:
694 点
下载积分:
1875 分
在线时间: 1046(小时)
注册时间:
2008-11-05
最后登录:
2026-04-23
查看ajunn的
主题
/
回贴
9楼
发表于: 43天前
只看该作者
|
小
中
大
赞同5楼
分享
呀三先生
级别: 探索解密
发送短信
加为好友
精华主题:
0
发帖数量:
37 个
工控威望:
110 点
下载积分:
507 分
在线时间: 26(小时)
注册时间:
2025-10-16
最后登录:
2026-05-07
查看呀三先生的
主题
/
回贴
10楼
发表于: 38天前
只看该作者
|
小
中
大
左的边KM1和KM3并联,KM1可以选小一点 ,价格可以便宜一点。
分享
陌上花开_
级别: 论坛先锋
发送短信
加为好友
精华主题:
0
发帖数量:
79 个
工控威望:
1350 点
下载积分:
777 分
在线时间: 201(小时)
注册时间:
2021-03-19
最后登录:
2026-05-09
查看陌上花开_的
主题
/
回贴
11楼
发表于: 37天前
只看该作者
|
小
中
大
综合一下,把左边KM3的上端放在热继电器的下端,保证安全性,接线也方便,线材多一点点
分享
上一主题
下一主题
«
1
2
»
Pages: 1/2 Go
工控人家园
综合讨论
星三启动电路那个更好
http://www.ymmfa.com
访问内容超出本站范围,不能确定是否安全
继续访问
取消访问