用户登陆
免费注册
找回密码
站内短信
论坛搜索
道具中心
统计排行
勋章中心
工控下载
购买产品
用户名
密码
输入验证码:
科学
综合讨论
资料互助
程序样例
三菱工控
西门子区
欧姆龙区
触摸屏区
工控人家园
三菱工控论坛
求个单相照明的问题
上一主题
下一主题
«
1
2
»
Pages: 1/2 Go
秋耕
牧歌
级别: 探索解密
发送短信
加为好友
精华主题:
0
发帖数量:
62 个
工控威望:
154 点
下载积分:
376 分
在线时间: 73(小时)
注册时间:
2009-11-25
最后登录:
2022-06-07
查看秋耕的
主题
/
回贴
楼主
发表于: 2010-07-28 20:34
只看楼主
|
小
中
大
谁能搞五个地方控制一个灯,给个电路图看看!
银河箫声
分享
王春杰
WCJ ZYR
级别: 略有小成
发送短信
加为好友
QQ联系
精华主题:
0
发帖数量:
332 个
工控威望:
496 点
下载积分:
1029 分
在线时间: 140(小时)
注册时间:
2010-07-10
最后登录:
2025-11-06
查看王春杰的
主题
/
回贴
1楼
发表于: 2010-07-29 15:19
只看该作者
|
小
中
大
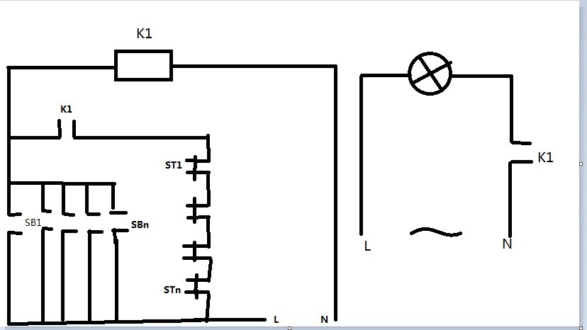
不好办,用PLC可以
分享
aijun2010
级别: 探索解密
发送短信
加为好友
QQ联系
精华主题:
0
发帖数量:
47 个
工控威望:
127 点
下载积分:
659 分
在线时间: 33(小时)
注册时间:
2010-07-17
最后登录:
2015-07-01
查看aijun2010的
主题
/
回贴
2楼
发表于: 2010-07-29 16:40
只看该作者
|
小
中
大
这个电路不实用吧,中间继电器很多!
分享
fayahui
做人要厚道,做事要诡道
级别: 家园常客
发送短信
加为好友
精华主题:
0
发帖数量:
693 个
工控威望:
733 点
下载积分:
1423 分
在线时间: 2200(小时)
注册时间:
2008-06-13
最后登录:
2016-12-21
查看fayahui的
主题
/
回贴
3楼
发表于: 2010-07-29 17:19
只看该作者
|
小
中
大
用三联开关,100处都可以
分享
shaolinsi
佛曰:不可说
级别: VIP会员
发送短信
加为好友
精华主题:
0
发帖数量:
527 个
工控威望:
1209 点
下载积分:
1554 分
在线时间: 112(小时)
注册时间:
2010-05-04
最后登录:
2014-11-13
查看shaolinsi的
主题
/
回贴
4楼
发表于: 2010-07-29 17:26
只看该作者
|
小
中
大
图片:
看看图,还用解释一下吗?!
饿米豆腐
分享
xiaoqizi
级别: 论坛先锋
发送短信
加为好友
QQ联系
精华主题:
0
发帖数量:
441 个
工控威望:
1319 点
下载积分:
2408 分
在线时间: 718(小时)
注册时间:
2009-07-06
最后登录:
2025-10-28
查看xiaoqizi的
主题
/
回贴
5楼
发表于: 2010-07-29 17:31
只看该作者
|
小
中
大
强,不过好象有问题,三联开关接不了嘛,要双刀才行
分享
秋耕
牧歌
级别: 探索解密
发送短信
加为好友
精华主题:
0
发帖数量:
62 个
工控威望:
154 点
下载积分:
376 分
在线时间: 73(小时)
注册时间:
2009-11-25
最后登录:
2022-06-07
查看秋耕的
主题
/
回贴
6楼
发表于: 2010-07-30 21:12
只看该作者
|
小
中
大
我要的是墙壁开关啊!用继电器谁不会哦!
银河箫声
分享
5921338
好好学习,天天向上
级别: 网络英雄
发送短信
加为好友
QQ联系
精华主题:
0
发帖数量:
678 个
工控威望:
10604 点
下载积分:
1956 分
在线时间: 373(小时)
注册时间:
2008-11-27
最后登录:
2025-11-10
查看5921338的
主题
/
回贴
7楼
发表于: 2010-07-31 10:34
只看该作者
|
小
中
大
谁说要中继了,普通的单联双控灯开关就可以
自学
分享
plqa0910
级别: 略有小成
发送短信
加为好友
精华主题:
0
发帖数量:
78 个
工控威望:
217 点
下载积分:
1242 分
在线时间: 29(小时)
注册时间:
2010-04-27
最后登录:
2016-01-29
查看plqa0910的
主题
/
回贴
8楼
发表于: 2010-07-31 10:46
只看该作者
|
小
中
大
单联双控灯开关就可以
分享
鲁庄
级别: *
发送短信
加为好友
精华主题:
* 篇
发帖数量:
* 个
工控威望:
* 点
下载积分:
* 分
在线时间: (小时)
注册时间:
*
最后登录:
*
查看鲁庄的
主题
/
回贴
9楼
发表于: 2010-07-31 20:59
只看该作者
|
小
中
大
http://hi.baidu.com/luzhuang126/album/item/5483992b3ca1c3ffe7cd402c.html
分享
秋耕
牧歌
级别: 探索解密
发送短信
加为好友
精华主题:
0
发帖数量:
62 个
工控威望:
154 点
下载积分:
376 分
在线时间: 73(小时)
注册时间:
2009-11-25
最后登录:
2022-06-07
查看秋耕的
主题
/
回贴
10楼
发表于: 2010-07-31 21:02
只看该作者
|
小
中
大
能给出电路图吗?光说无异于纸上谈兵!生性直言,见谅!
银河箫声
分享
shaolinsi
佛曰:不可说
级别: VIP会员
发送短信
加为好友
精华主题:
0
发帖数量:
527 个
工控威望:
1209 点
下载积分:
1554 分
在线时间: 112(小时)
注册时间:
2010-05-04
最后登录:
2014-11-13
查看shaolinsi的
主题
/
回贴
11楼
发表于: 2010-08-01 00:16
只看该作者
|
小
中
大
下次把话先说清楚
饿米豆腐
分享
上一主题
下一主题
«
1
2
»
Pages: 1/2 Go
工控人家园
三菱工控论坛
求个单相照明的问题
http://www.ymmfa.com
访问内容超出本站范围,不能确定是否安全
继续访问
取消访问