用户登陆
免费注册
找回密码
站内短信
论坛搜索
道具中心
统计排行
勋章中心
工控下载
购买产品
用户名
密码
输入验证码:
科学
综合讨论
资料互助
程序样例
三菱工控
西门子区
欧姆龙区
触摸屏区
工控人家园
综合讨论
三菱L06PLC 上传程序不完整
上一主题
下一主题
小鱼儿er
级别: 探索解密
发送短信
加为好友
精华主题:
0
发帖数量:
15 个
工控威望:
119 点
下载积分:
2266 分
在线时间: 29(小时)
注册时间:
2024-02-18
最后登录:
2026-04-25
查看小鱼儿er的
主题
/
回贴
楼主
发表于: 2025-12-05 11:13
只看楼主
|
小
中
大
图片:
图片:
图片:
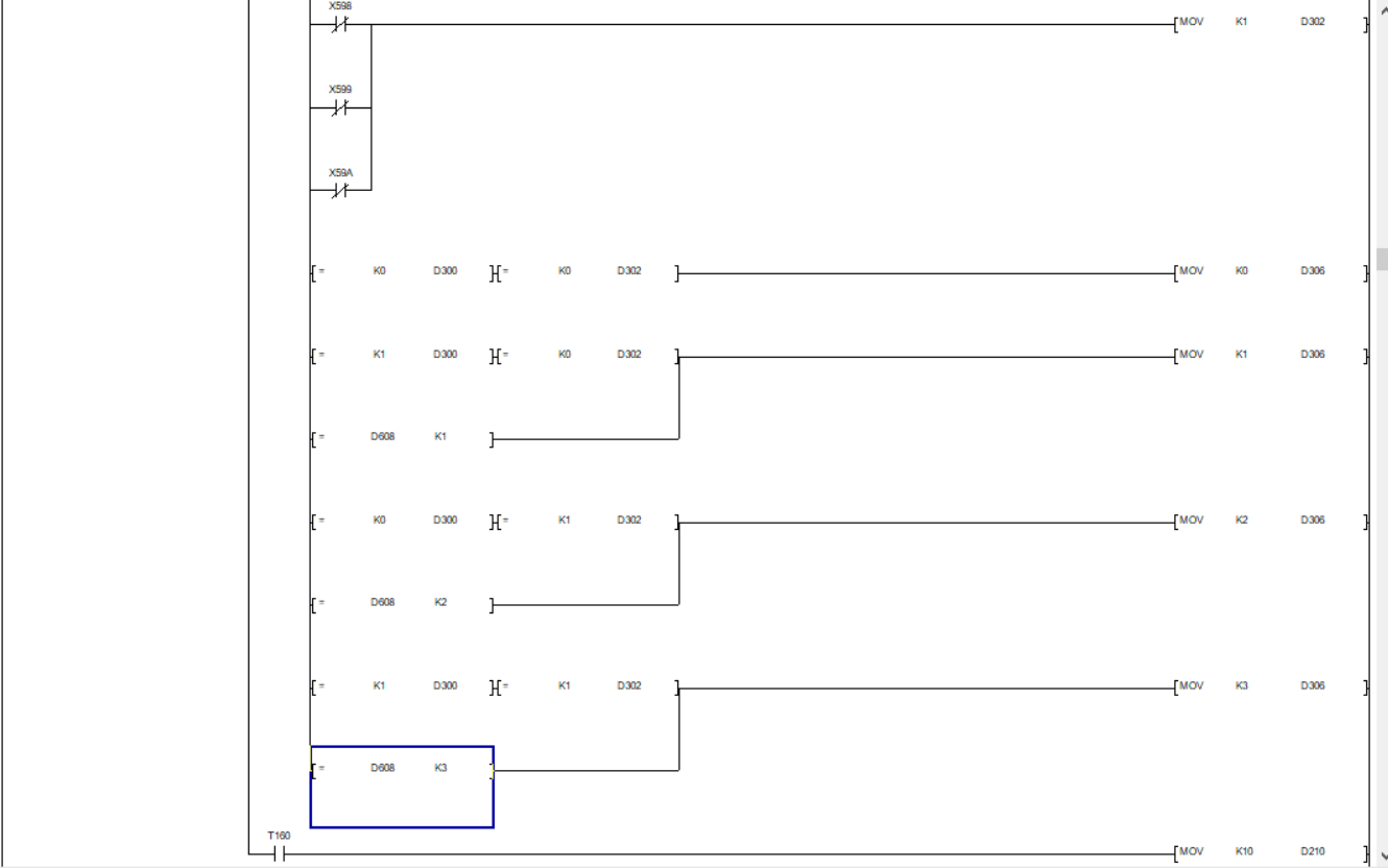
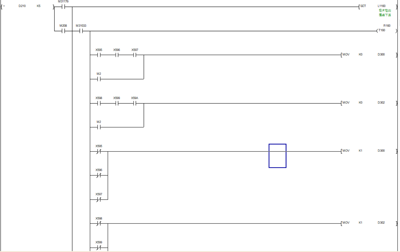
公司有一台三菱L06PLC,程序读出来有一段程序是黄色,而且程序还不可见,但是我查有几个感应器就是在黄色部分里面,现在出问题的也是在黄色部分里面,有没有大佬知道这是什么情况啊,有没有什么解决办法,望不吝赐教
附件:
1# Versa电池盒组装机.zip
(308 K) 下载次数:39
分享
zhengtiguo
上善若水
级别: 家园常客
发送短信
加为好友
QQ联系
精华主题:
0
发帖数量:
614 个
工控威望:
674 点
下载积分:
5819 分
在线时间: 148(小时)
注册时间:
2025-05-29
最后登录:
2026-04-28
查看zhengtiguo的
主题
/
回贴
1楼
发表于: 2025-12-05 12:20
只看该作者
|
小
中
大
重启下
深耕技术
分享
bdmogui
级别: 略有小成
发送短信
加为好友
精华主题:
0
发帖数量:
171 个
工控威望:
301 点
下载积分:
1347 分
在线时间: 664(小时)
注册时间:
2013-10-12
最后登录:
2026-04-21
查看bdmogui的
主题
/
回贴
2楼
发表于: 2025-12-05 12:58
只看该作者
|
小
中
大
在“选项”里将梯形图显示触点数改大
分享
小鱼儿er
级别: 探索解密
发送短信
加为好友
精华主题:
0
发帖数量:
15 个
工控威望:
119 点
下载积分:
2266 分
在线时间: 29(小时)
注册时间:
2024-02-18
最后登录:
2026-04-25
查看小鱼儿er的
主题
/
回贴
3楼
发表于: 2025-12-05 18:33
只看该作者
|
小
中
大
图片:
图片:
图片:
引用
引用第2楼bdmogui于2025-12-05 12:58发表的 :
在“选项”里将梯形图显示触点数改大
非常感谢啊,已经解决了就是显示问题,那一段太长了显示不出来,改一下就可以了
分享
上一主题
下一主题
工控人家园
综合讨论
三菱L06PLC 上传程序不完整
http://www.ymmfa.com
访问内容超出本站范围,不能确定是否安全
继续访问
取消访问