shanguqf
级别: 略有小成
精华主题: 0
发帖数量: 113 个
工控威望: 237 点
下载积分: 7602 分
在线时间: 77(小时)
注册时间: 2012-07-27
最后登录: 2017-09-08
查看shanguqf的 主题 / 回贴
楼主  发表于: 2012-11-15 15:42
几点说明:
1、本视频内容来自于网络,本人不确保其所显示内容的完全正确性,仅供需要者参考。
2、本视频内容原作者命名为“PCschematic视频教程”,并非本人命名。是否可称之为“教程”,请下载参考的朋友自行斟酌。
3、本视频内容所演示的各个操作步骤本人不做任何的解答,请各位下载参考的朋友自行探讨。在这里只能对各位朋友说一声“抱歉”。
4、本视频文件总大小:6.89M ;本人按照论坛规定应用“2345好压(Haozip)”生成制作了共计4个分离压缩包,请使用2345好压压缩工具来解压。解压时,需要将这4个分离压缩包全部下载,方可顺利完成,缺一不可。解压时,无需密码。
5、分卷文件共有以下4个:
PCschematic视频教程.haozip01.zip
PCschematic视频教程.haozip02.zip
PCschematic视频教程.haozip03.zip
PCschematic视频教程.haozip04.zip
6、2345好压工具下载地址:http://www.haozip.com/
祝需要的朋友下载解压、应用成功。
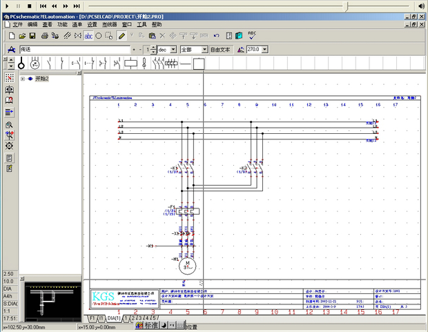
附:本视频内容演示图两张。(供参考)




本想在这一个帖子中全部发送,不知为什么总是提示:“传送失败”。我想,可能本论坛是“电信”网络吧……
尝试一下采用“跟帖”方式可否上传这几个分离压缩包……
期望可以
dcom0128
级别: 探索解密
精华主题: 0
发帖数量: 17 个
工控威望: 137 点
下载积分: 1304 分
在线时间: 10(小时)
注册时间: 2013-10-08
最后登录: 2014-04-03
查看dcom0128的 主题 / 回贴
1楼  发表于: 2013-10-09 13:43
謝謝