何舞汽
多谈些问题,少谈些主义!
级别: 家园常客
精华主题: 0
发帖数量: 169 个
工控威望: 623 点
下载积分: 8552 分
在线时间: 254(小时)
注册时间: 2010-02-24
最后登录: 2026-05-02
查看何舞汽的 主题 / 回贴
84楼  发表于: 2012-05-31 15:55
图片:
1。同时启动:先按下SB4,后按下SB2,则为同时启动.按下SB1,则为同时停止.
2,先后启动:按下SB2,KM1先得电,再按下SB4 ,KM2得电,先后停止:按下SB3, KM2失电,按下 SB1, KM1失电
题目没写要按几次钮,或一次只按一个钮,或一种功能按一个钮全实现。
因没全看楼上别的老兄的,如有雷同,纯属巧合!
闲坐莫谈国是!
何舞汽
多谈些问题,少谈些主义!
级别: 家园常客
精华主题: 0
发帖数量: 169 个
工控威望: 623 点
下载积分: 8552 分
在线时间: 254(小时)
注册时间: 2010-02-24
最后登录: 2026-05-02
查看何舞汽的 主题 / 回贴
85楼  发表于: 2012-05-31 16:09
参加考试的时候题目是这样的:用两个接触器和4个按钮实现两台电机既能实现先后启动和停止,也能实现同时启动和停止。本人不才,画了几天也没能实现上述要求,特在此请教高手指教。虽然考试已经结束,但是这个题目一直困扰着我。如芒在背。烦请各位高手指教。
接触器是3组主触点,2组常开触点,2组常闭触点那种。按钮式1组常开,1组常闭那种。4个独立的按钮。
其实出该题目的人也可以说是瞎搞,什么题不出,出这种没多大现实意义的题。楼主,不就一道题吗,用得着那么较真呼?很多出题者其实际能力可能远不如我们,没必要对此等破玩意儿太过在意!
闲坐莫谈国是!
chenpingyg
机械是柱石,电气是灵魂.
级别: VIP会员
精华主题: 0
发帖数量: 1159 个
工控威望: 6705 点
下载积分: 100 分
在线时间: 603(小时)
注册时间: 2007-01-25
最后登录: 2017-04-03
查看chenpingyg的 主题 / 回贴
86楼  发表于: 2012-05-31 16:42
引用
引用第86楼何舞汽于2012-05-31 16:09发表的  :
参加考试的时候题目是这样的:用两个接触器和4个按钮实现两台电机既能实现先后启动和停止,也能实现同时启动和停止。本人不才,画了几天也没能实现上述要求,特在此请教高手指教。虽然考试已经结束,但是这个题目一直困扰着我。如芒在背。烦请各位高手指教。
接触器是3组主触点,2组常开触点,2组常闭触点那种。按钮式1组常开,1组常闭那种。4个独立的按钮。
其实出该题目的人也可以说是瞎搞,什么题不出,出这种没多大现实意义的题。楼主,不就一道题吗,用得着那么较真呼?很多出题者其实际能力可能远不如我们,没必要对此等破玩意儿太过在意!

对技术上我一向很认真。
自己的事情自己做.
hds1990
级别: 略有小成
精华主题: 0
发帖数量: 26 个
工控威望: 295 点
下载积分: 1401 分
在线时间: 94(小时)
注册时间: 2009-07-23
最后登录: 2017-12-28
查看hds1990的 主题 / 回贴
87楼  发表于: 2012-05-31 18:35


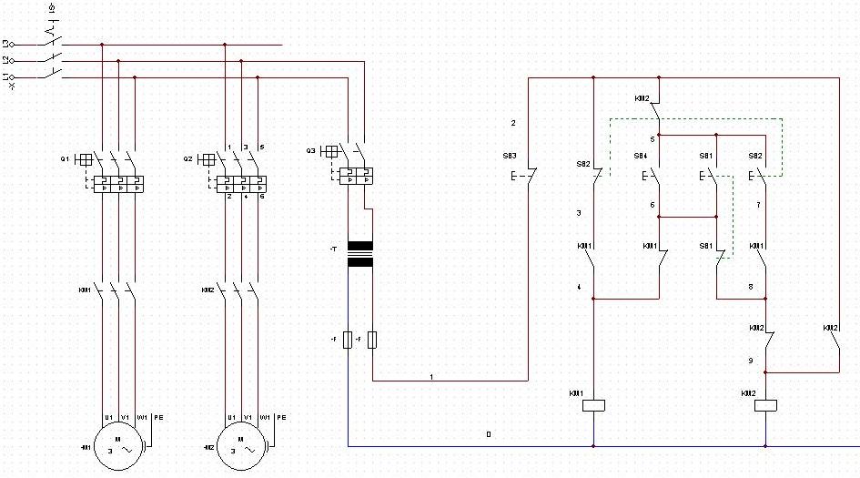
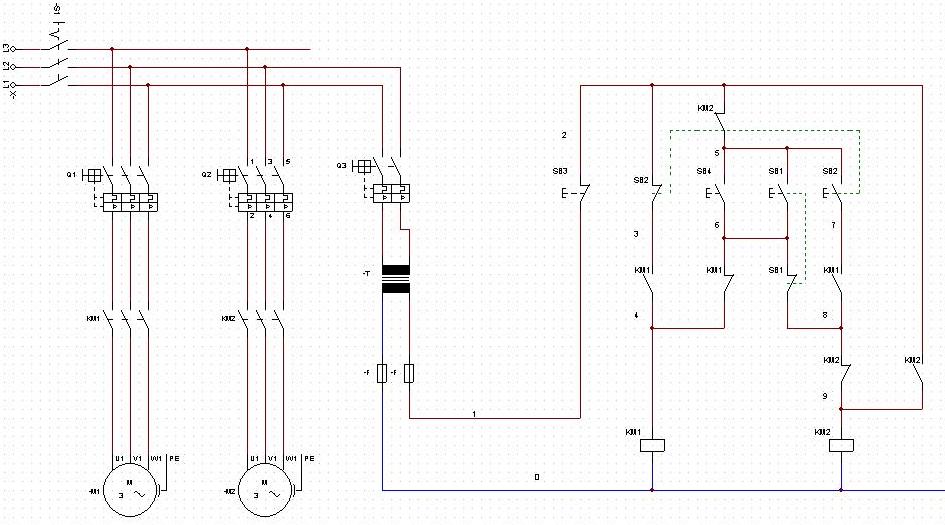
我不是电工,业余画画。今天抽时间整理下昨天的图纸,规范下,不当之处请多拍砖,这是道值得动脑筋的基础题,正好学习下电工知识。
工作过程:
1.按下SB1,KM1启动并自锁,实现先启动电机M1;然后可以按下SB4启动KM2并自锁,实现后启动电机M2。按下SB2停止电机M1,实现先停止;再按下SB3停止电机M2,实现后停止。
2.单独按下SB4,同时启动KM1和KM2实现电机M1和电机M2同时启动并自锁,按下SB3同时停止电机M1和电机M2。
3.以上先后次序不能乱,即SB1-(电机M1先启动)-SB4-(电机M2启动)-SB2-(电机M1停止)-SB3(电机M2停止)。

4.我所理解的“先后启动停止”应该是电机M1和电机M2先启动一个,再启动另一个,先启动的先停止,后启动的后停止,当然也可以同时停止。如果是启动甲电机,停止甲电机后再去启动乙电机,再然后停止乙电机,那就变成了分别启停了,那样的话楼主的题就变成了“可先后分别启动和停止”这道题就简单多了,也就没啥意义了;如果先后启动的电机都通过总停止按钮去达到停止的目的,那就变成了“先后启动并同时停止”也没有多大意义。
5.    此题的目的简单说来就是先来的先走,后来的后走,一块来的一块走。
6.就这样吧
fsyujing
级别: 略有小成
精华主题: 0
发帖数量: 198 个
工控威望: 316 点
下载积分: 4508 分
在线时间: 109(小时)
注册时间: 2009-07-19
最后登录: 2023-06-19
查看fsyujing的 主题 / 回贴
88楼  发表于: 2012-05-31 20:08
孔乙己
qrklove
级别: 家园常客
精华主题: 0
发帖数量: 478 个
工控威望: 733 点
下载积分: 2197 分
在线时间: 485(小时)
注册时间: 2008-11-01
最后登录: 2026-05-02
查看qrklove的 主题 / 回贴
89楼  发表于: 2012-05-31 20:48
昨天晚上看过这样一部美国探月飞行的电影《阿波罗13》是根据真实的事情改编的,其中一个情节说是登月舱上用以过滤二氧化碳的氢氧化锂过滤器并不足以坚持四天。尽管指令舱上有备用过滤器,但它们与登月舱上过滤器的接口形状不同。在二氧化碳浓度越来越高的情况下,地面指挥最终设计了一个连接装置,以降低登月舱的二氧化碳浓度,这个装置就是用登月舱现有的一些材料重新设计的。我们在平时工作也会出现,材料不够用,但又要把机器修好的状况。结合这个题目,就是用一些不够用,不符合一般要求的元件,来完成符合要求的工作。这个题目考的就是思维。
格林
我听到了花开的声音,也看到了花落的结局.
级别: 工控侠客
精华主题: 0
发帖数量: 162 个
工控威望: 3419 点
下载积分: 3784 分
在线时间: 62(小时)
注册时间: 2011-06-08
最后登录: 2026-05-07
查看格林的 主题 / 回贴
90楼  发表于: 2012-05-31 21:31
引用
引用第88楼hds1990于2012-05-31 18:35发表的  :
[attachment=85314]
我不是电工,业余画画。今天抽时间整理下昨天的图纸,规范下,不当之处请多拍砖,这是道值得动脑筋的基础题,正好学习下电工知识。
工作过程:
1.按下SB1,KM1启动并自锁,实现先启动电机M1;然后可以按下SB4启动KM2并自锁,实现后启动电机M2。按下SB2停止电机M1,实现先停止;再按下SB3停止电机M2,实现后停止。
2.单独按下SB4,同时启动KM1和KM2实现电机M1和电机M2同时启动并自锁,按下SB3同时停止电机M1和电机M2。
.......

按下SB1,KM1根本不能自锁。不停的抖动。
hds1990
级别: 略有小成
精华主题: 0
发帖数量: 26 个
工控威望: 295 点
下载积分: 1401 分
在线时间: 94(小时)
注册时间: 2009-07-23
最后登录: 2017-12-28
查看hds1990的 主题 / 回贴
91楼  发表于: 2012-05-31 21:36
引用
引用第91楼格林于2012-05-31 21:31发表的  :

按下SB1,KM1根本不能自锁。不停的抖动。

你确信KM1会不停抖动吗?

qrklove
级别: 家园常客
精华主题: 0
发帖数量: 478 个
工控威望: 733 点
下载积分: 2197 分
在线时间: 485(小时)
注册时间: 2008-11-01
最后登录: 2026-05-02
查看qrklove的 主题 / 回贴
92楼  发表于: 2012-05-31 21:36
你还真的用接触器试验啊,理论上这图可以,用PLC实验也可以,但用接触器就不行了,用PLC的词来说,扫描周期太短
hds1990
级别: 略有小成
精华主题: 0
发帖数量: 26 个
工控威望: 295 点
下载积分: 1401 分
在线时间: 94(小时)
注册时间: 2009-07-23
最后登录: 2017-12-28
查看hds1990的 主题 / 回贴
93楼  发表于: 2012-05-31 21:45
  
引用
引用第93楼qrklove于2012-05-31 21:36发表的  :
你还真的用接触器试验啊,理论上这图可以,用PLC实验也可以,但用接触器就不行了,用PLC的词来说,扫描周期太短




看看按下SB1时的情况

[ 此帖被hds1990在2012-05-31 21:53重新编辑 ]
格林
我听到了花开的声音,也看到了花落的结局.
级别: 工控侠客
精华主题: 0
发帖数量: 162 个
工控威望: 3419 点
下载积分: 3784 分
在线时间: 62(小时)
注册时间: 2011-06-08
最后登录: 2026-05-07
查看格林的 主题 / 回贴
94楼  发表于: 2012-05-31 21:48
你只是用软件模拟了一下,我确信接触器会抖动。
hds1990
级别: 略有小成
精华主题: 0
发帖数量: 26 个
工控威望: 295 点
下载积分: 1401 分
在线时间: 94(小时)
注册时间: 2009-07-23
最后登录: 2017-12-28
查看hds1990的 主题 / 回贴
95楼  发表于: 2012-05-31 21:55
引用
引用第95楼格林于2012-05-31 21:48发表的  :
你只是用软件模拟了一下,我确信接触器会抖动。

你仔细看看电流通路