用户登陆
免费注册
找回密码
站内短信
论坛搜索
道具中心
统计排行
勋章中心
工控下载
购买产品
用户名
密码
输入验证码:
睡眠
综合讨论
资料互助
程序样例
三菱工控
西门子区
欧姆龙区
触摸屏区
工控人家园
综合讨论
变压器问题(在线等)
上一主题
下一主题
xcamel
级别: 探索解密
发送短信
加为好友
精华主题:
0
发帖数量:
40 个
工控威望:
149 点
下载积分:
780 分
在线时间: 40(小时)
注册时间:
2010-08-17
最后登录:
2015-10-10
查看xcamel的
主题
/
回贴
楼主
发表于: 2011-09-14 15:05
全看
|
小
中
大
此变压器的N端子和变压器铁芯引出线共接于PE线上,不接PE可以理解为隔离变压器,接了PE不能理解,请问这样设计是什么意思,有什么优点?此外隔离变压器一般都应是1:1的呀,注:这是德国设计的设备。
[ 此帖被xcamel在2011-09-14 15:25重新编辑 ]
分享
xcamel
级别: 探索解密
发送短信
加为好友
精华主题:
0
发帖数量:
40 个
工控威望:
149 点
下载积分:
780 分
在线时间: 40(小时)
注册时间:
2010-08-17
最后登录:
2015-10-10
查看xcamel的
主题
/
回贴
1楼
发表于: 2011-09-14 15:07
全看
|
小
中
大
分享
xcamel
级别: 探索解密
发送短信
加为好友
精华主题:
0
发帖数量:
40 个
工控威望:
149 点
下载积分:
780 分
在线时间: 40(小时)
注册时间:
2010-08-17
最后登录:
2015-10-10
查看xcamel的
主题
/
回贴
2楼
发表于: 2011-09-19 11:46
全看
|
小
中
大
防止零电位漂移可以理解,可我总感觉应该接N
分享
xcamel
级别: 探索解密
发送短信
加为好友
精华主题:
0
发帖数量:
40 个
工控威望:
149 点
下载积分:
780 分
在线时间: 40(小时)
注册时间:
2010-08-17
最后登录:
2015-10-10
查看xcamel的
主题
/
回贴
3楼
发表于: 2011-09-19 16:35
全看
|
小
中
大
大侠们,求救啊!
分享
xcamel
级别: 探索解密
发送短信
加为好友
精华主题:
0
发帖数量:
40 个
工控威望:
149 点
下载积分:
780 分
在线时间: 40(小时)
注册时间:
2010-08-17
最后登录:
2015-10-10
查看xcamel的
主题
/
回贴
4楼
发表于: 2011-09-20 10:28
全看
|
小
中
大
也就是说接PE就是等电位的意思,可以消除感应电压是吗?大侠!!!
分享
xcamel
级别: 探索解密
发送短信
加为好友
精华主题:
0
发帖数量:
40 个
工控威望:
149 点
下载积分:
780 分
在线时间: 40(小时)
注册时间:
2010-08-17
最后登录:
2015-10-10
查看xcamel的
主题
/
回贴
5楼
发表于: 2011-09-20 16:48
全看
|
小
中
大
关键是没接地,接的是PE
分享
xcamel
级别: 探索解密
发送短信
加为好友
精华主题:
0
发帖数量:
40 个
工控威望:
149 点
下载积分:
780 分
在线时间: 40(小时)
注册时间:
2010-08-17
最后登录:
2015-10-10
查看xcamel的
主题
/
回贴
6楼
发表于: 2011-09-21 13:28
全看
|
小
中
大
求解啊
分享
xcamel
级别: 探索解密
发送短信
加为好友
精华主题:
0
发帖数量:
40 个
工控威望:
149 点
下载积分:
780 分
在线时间: 40(小时)
注册时间:
2010-08-17
最后登录:
2015-10-10
查看xcamel的
主题
/
回贴
7楼
发表于: 2011-09-22 15:25
全看
|
小
中
大
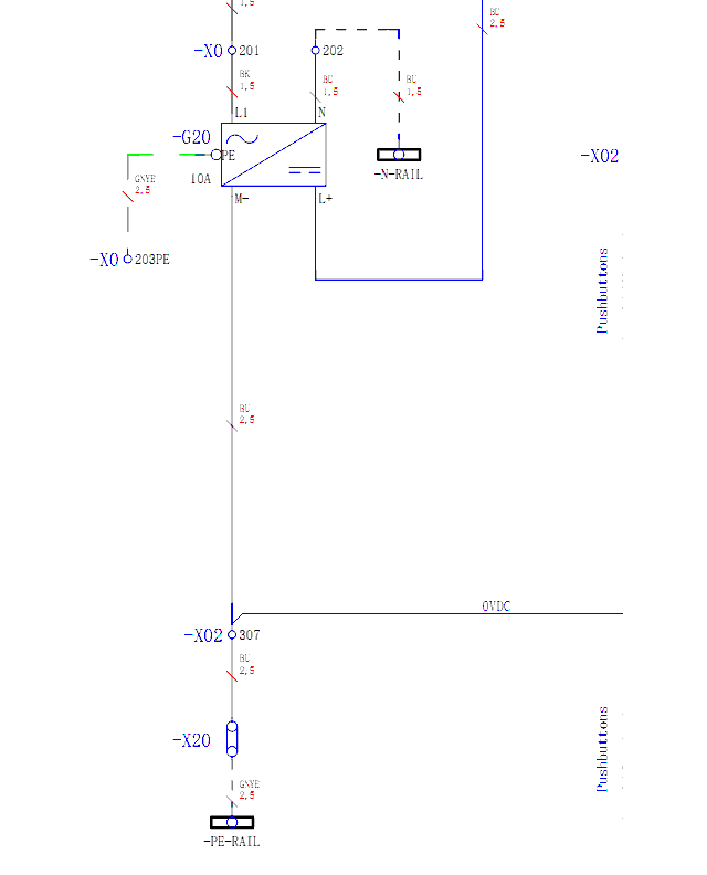
抱歉,图我发错了,应该是这张
分享
xcamel
级别: 探索解密
发送短信
加为好友
精华主题:
0
发帖数量:
40 个
工控威望:
149 点
下载积分:
780 分
在线时间: 40(小时)
注册时间:
2010-08-17
最后登录:
2015-10-10
查看xcamel的
主题
/
回贴
8楼
发表于: 2011-09-22 15:26
全看
|
小
中
大
直流电源M-为什么接PE不接N?
分享
上一主题
下一主题
工控人家园
综合讨论
变压器问题(在线等)
http://www.ymmfa.com
访问内容超出本站范围,不能确定是否安全
继续访问
取消访问